Grange À Vendre

€ 242.000

Honoraires à la charge du vendeur

Voir toutes les photos

À vendre

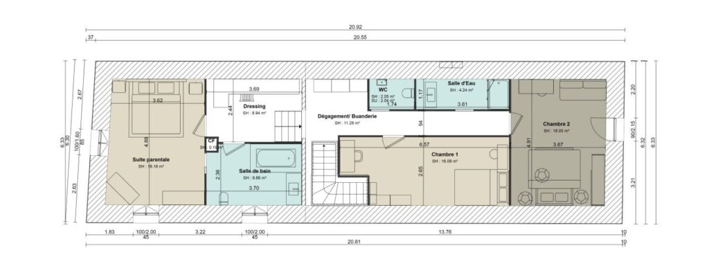
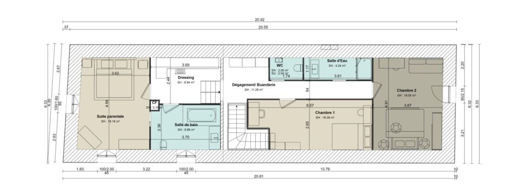
UDI BALLANCOURT- Sur la commune de Écharcon – Magnifique grange en pierre à réhabiliter de 180 m² avec grande cave voutée.
Possibilité de créer une splendide maison sur deux niveaux avec séjour-triple et une cuisine aménagée et équipée de plus de 70 m², une suite parentale avec salle d’eau et dressing, trois grandes chambres, salle d’eau et wc.

Le tout sur un terrain de 813 m².

Honoraires à la charge du vendeur.

Les informations sur les risques auxquels ce bien est exposé sont disponibles sur le site Géorisques : www.georisques.gouv.fr

Bien non soumis au DPE.

Annonce immobilière rédigée sous la responsabilité éditoriale de M. Aurélien CHIARONI, Agent Commercial mandataire en immobilier (EI) immatriculé au Registre Spécial des Agents Commerciaux (RSAC) du Tribunal de Commerce de Evry sous le numéro 890 861 875.

  • Chambres a coucher

    4

  • Salles de bain

    1

  • Toilettes

    1

Caractéristiques

  • État du bâtiment

    Bon état

  • État de la salle de bain

    Bon état

  • Etat de la cuisine

    Bon état

Énergie

Aucune information énergétique disponible.

Surfaces

  • Surface habitable

    180m²

  • Surface au sol

    813m²

Plans et documents

Plans
-
Documents
-

Informations sur les prix

  • € 242.000
  • Honoraires à la charge de vendeur
Ballancourt et Itteville

Ballancourt et Itteville

Mentions légales

Agent Commercial mandataire en immobilier (EI), immatriculé au Registre Spécial des Agents Commerciaux (RSAC), du Tribunal de Commerce de Evry.


RSAC: 890 861 875

Cette propriété vous intéresse?

Prénom *

Email *

Nom de famille *

Numéro de téléphone *

Votre message *

Si vous ne souhaitez pas faire l’objet de prospection commerciale par voie téléphonique, vous pouvez vous inscrire gratuitement sur la liste d’opposition au démarchage téléphonique accessible sur le site internet https://www.bloctel.gouv.fr/ .